Cucina Mobile su Furgone 10 Compatta, feroce, pronta all’azione

Arrivi, scarichi, cucini. Dominio assoluto su eventi, catering, emergenze.

Soluzione definitiva per eventi rapidi, street food, catering mobili, emergenze.
Potenza, sicurezza, velocità: nessun compromesso.

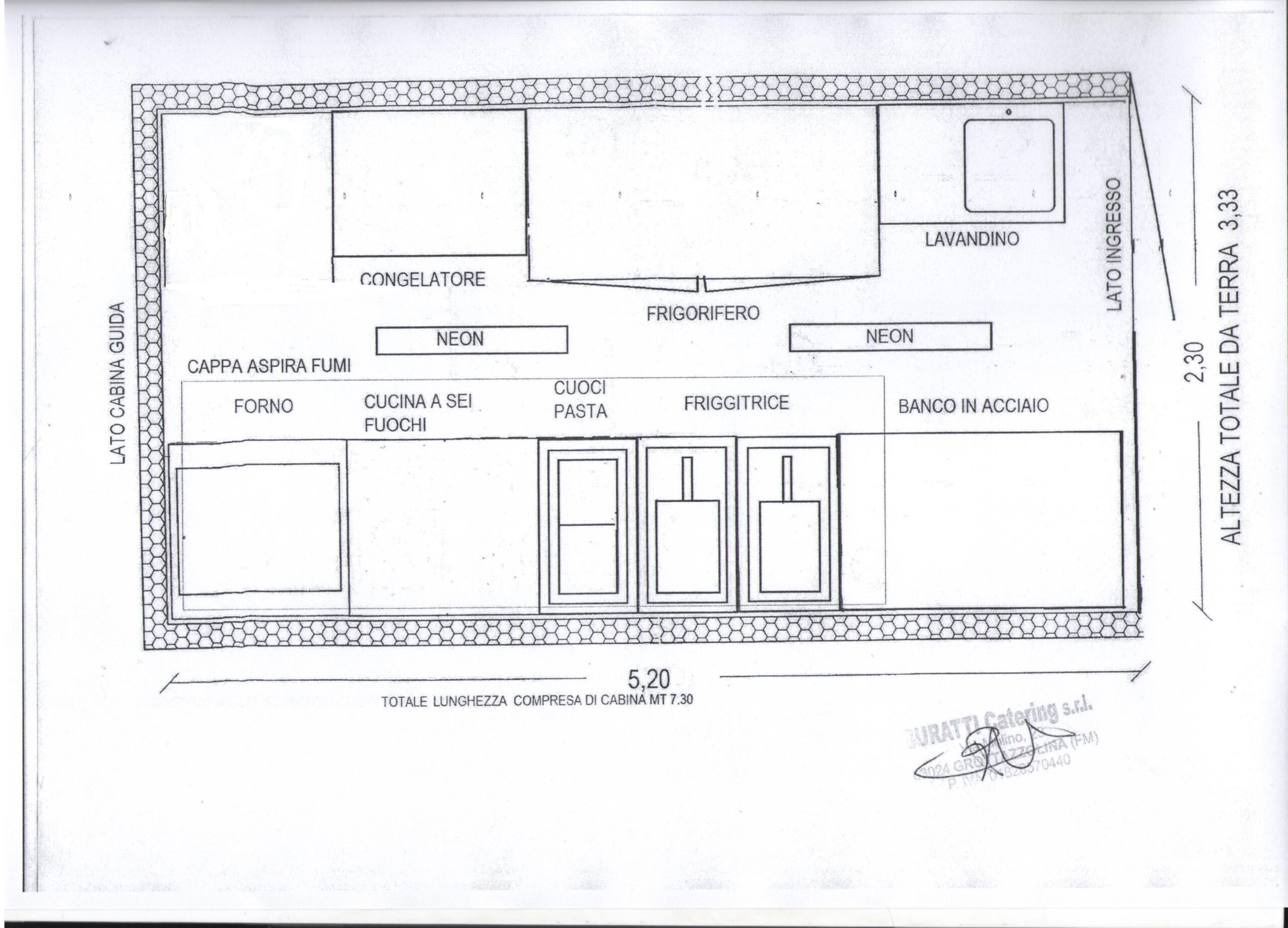
Dotazione completa cucina mobile su furgone 10

Elenco accessori e attrezzature certificate della cucina mobile su furgone 10, la soluzione definitiva per eventi rapidi, street food, catering mobili, emergenze.
  • Cucina mobile su furgone n°10 La compatta che domina eventi rapidi, street food, catering mobili.
  • Dimensioni 6.00 x 2.50 m – cucina 5.20 m Massimo spazio, minimi ingombri. Fai tutto, ovunque.
  • Alimentazione gas + 220V (4Kw) Potenza compatta, senza limiti. Nessuna interruzione.
  • Cucina a 6 fuochi Rapidità senza rivali. Produci di tutto, a ciclo continuo.
  • Forno gas 5 teglie Cottura precisa, nessuna perdita di tempo. Sempre pronto.
  • Cuocipasta a due cestelli Primi sempre pronti. Zero tempi morti.
  • Friggitrice a due vasche Frittura inarrestabile. Serve velocità? Qui c’è.
  • Banco in acciaio Lavoro ordinato, pulito, professionale. Sempre sotto controllo.
  • Frigorifero a due ante Maxi conservazione. Tutto sotto controllo, sempre freddo.
  • Congelatore a pozzetto Scorte sempre pronte. Mai senza riserva.
  • Lavandino Igiene senza compromessi. Pronto per veri professionisti.
  • Cappa aspirante Aria perfetta. Lavori duro, respiri facile.
  • Boiler Acqua calda istantanea. Niente fermate, solo efficienza.
  • Cisterna acqua chiara 80L Autonomia reale. Lavora ovunque, nessun limite.
  • Cisterna acqua reflua 50L Scarico facile, nessun rischio. Sempre in regola.
Furgone Compatto

Perché Scegliere la Cucina Mobile su Furgone N.10

La cucina mobile su furgone N.10 domina sagre piccole e medie con agilità operativa: furgone cucina 6×2,5 metri certificato per eventi 300-600 persone, centri storici, Pro Loco con budget contenuto. Installazione autonoma 20 minuti, capacità produttiva 400 pasti/ora.

Compattezza 6×2,5m

Entra in centri storici, strade strette, piazze ridotte. Spazio minimo richiesto 7×3 metri. Ideale borghi medievali, frazioni, eventi itineranti.

Installazione 20 Minuti

Furgone già autonomo: collega acqua, corrente, gas e sei operativo. Stesso giorno evento possibile. No gru necessaria, no complicazioni logistiche.

400 Pasti/Ora

6 fuochi, forno 5 teglie, friggitrice doppia, cuocipasta 2 cestelli. Gestione fluida sagre 300-600 persone. Menu completo: primi, secondi, contorni, fritti.

Prezzo Entry Level

Configurazione base accessibile per Pro Loco piccole, prime edizioni sagre, eventi sperimentali. Rapporto qualità-prezzo imbattibile per sagre medie.

Certificata ASL/HACCP

Documenti PA pronti, fatturazione elettronica, conformità normativa completa. Consegna 2 giorni prima evento con collaudo operatore dedicato.

Assistenza Diretta 24/7

Paolo Buratti 339 703 0520 risponde direttamente durante evento. Zero intermediari, problema risolto in tempo reale.

Furgone N.10 vs Camion N.3 Mercedes: Quale Scegliere per la Tua Sagra

Caratteristica N.10 Furgone (Sagre piccole/medie) N.3 Mercedes 1117 (Sagre grandi)
Dimensioni 6×2,5m (compatto) 9×2,5m (+50%)
Capienza evento 300-600 persone 800-1500 persone
Capacità produttiva 400 pasti/ora 700 pasti/ora
Installazione 20 minuti (identica) 20 minuti (identica)
Spazio minimo richiesto 7×3m (ridotto) 10×4m
Refrigerazione Frigo 2 ante + congelatore Frigo 2 ante 1200L + frigo 1 anta 600L + congelatore
Friggitrice Doppia (capacità standard) Doppia 25+25L (maggiorata)
Forno 5 teglie gas 10 teglie gas/vapore
Cuocipasta 2 cestelli 3 vasche professionali
Prezzo indicativo € (entry level) €€ (medio)
Ideale per Sagre 300-600 persone
Centri storici stretti
Pro Loco piccole
Prime edizioni
Budget contenuto
Sagre 800-1500 persone
Grandi eventi pubblici
Menu complessi articolati
Catering istituzionale
Emergenze Protezione Civile

Quando Scegliere il Furgone N.10 (non il Mercedes N.3)

  • Evento 300-600 persone (oltre questa soglia serve N.3 Mercedes)
  • Spazio limitato: centri storici, strade strette, piazze ridotte (serve massimo 7×3 metri)
  • Budget contenuto: Pro Loco piccole, prima edizione sagra, eventi sperimentali
  • Menu semplice: 1-2 portate principali (pasta + grigliata, o pasta + fritto)
  • Velocità setup critica: installazione stesso giorno evento (no preavviso 2 giorni)
  • Mobilità: eventi itineranti multi-location, catering mobile borghi frazioni

Domande & Risposte
sulla cucina mobile su furgone 10

Cucina mobile su furgone 10: soluzione compatta per eventi rapidi, street food e catering
La compatta che schiaccia la concorrenza: 6 fuochi, forno a gas, friggitrice doppia, cuocipasta, frigo maxi, freezer e boiler in 6 metri. Perfetta per eventi rapidi, street food e catering mobili.
Pronta consegna ovunque: arrivi, scarichi, cucini. Allacci rapidi (acqua, luce, gas) con staff interno. Niente perdite di tempo: se hai fretta, è la risposta giusta.
Zero rischi: certificazioni ASL/HACCP e collaudo tecnico inclusi. Pronta per fiere, sagre, street food, emergenze e catering. Sopralluogo anche in video.
Dotazione completa, nessun compromesso: 6 fuochi, forno a gas, friggitrice doppia, cuocipasta a due cestelli, maxi frigorifero, congelatore, lavandino, cappa aspirante, boiler e cisterne acqua. Centinaia di pasti senza fermarsi.
Sì: eventi lampo, festival, street food, emergenze pubbliche e mense mobili. Dove altri si fermano, tu sei operativo.
Preventivo rapido e senza sprechi: modulo, email o telefono. Prezzo su misura, zero sorprese. Paghi solo ciò che ti serve.
Siamo veloci perché siamo preparati: supporto h24 e soluzioni su misura anche per le urgenze.
Trasparenza senza compromessi: visita in sede o video-visita. Niente foto da catalogo.
Semplice, ma non banale: istruzioni alla consegna. Puoi usare il tuo team o richiedere staff Buratti.
L'impatto reale della cucina mobile su furgone 10 Recensioni Verificate
★ ★ ★ ★ ★

Dove altri furgoni arrancano, la cucina mobile su furgone 10 ha macinato 180 pasti in 2 ore, in mezzo a una piazza gremita. Tutto pronto, tutto caldo, nessun intoppo. Il mio team è rimasto senza parole: mai più senza.

Giorgio D.
Parma
★ ★ ★ ★ ★

Avevo bisogno di una cucina mobile su furgone per un'emergenza catering, ho trovato solo improvvisazione tranne qui. Consegna immediata, attrezzatura vera, servizio impeccabile. Gli altri si fermano, Buratti va avanti.

Laura F.
Pescara
★ ★ ★ ★ ★

Servizio street food a festival: la cucina su furgone 10 è arrivata, si è collegata, e via. Ho fatto un incasso record senza sudare. Spazi veri, frigo gigante, nessun problema di corrente o gas. Finalmente un mezzo per professionisti.

Franco P.
Roma
★ ★ ★ ★ ★

Per anni ho visto solo furgoni adattati alla meno peggio. Qui invece è tutto professionale, dotazione di livello, comfort vero. Cucina mobile su furgone 10: la differenza tra improvvisare e dominare.

Claudio S.
Milano